
|
Stephen
Schneider |
Software Beratung Stephen schneider |
|
Tel
0941 307 4680 |
Software-Beratung |
HP-GL Viewer VcView Plotfiles PLT HPGL anschauen und wandeln in PDF DXF usw.
verwandtes Thema: DXF DWG Viewer: siehe LINKS bei schneider-train IT
Diese Webseite weiterempfehlen: Empfehlung per email an Bekannte
Vcview spart Geld und
Zeit!
Sie haben keinen Plotter und wollen
Ihre Plotfiles vor dem Versand überrpüfen, um Fehlausdrucke zu sparen?
Sie möchten die Plotfiles ins PDF Format wandeln, so dass jeder Empfänger die
Daten anschauen kann?
Sie erhalten Plotfiles und möchten diese in DXF oder TIF wandeln, um sie in CAD
einzulesen?
HP-GL-Viewer:
VcView deutsch
1. VcView 63 € zzgl. 16% ges. MwSt
Plotfiles anschauen
2. VcView Convert 189 € zzgl. 16% ges. MwSt
Plotfiles anschauen und wandeln
zzgl. Versandkosten 14,50 €
Bestellung per email
oder Fax 0941 3074688
Ein HP-GL - Viewer ist für viele Büros unverzichtbare Ergänzung zum CAD-Arbeitsplatz. Die Software VcView Convert ermöglicht Ihnen die Kontrolle und Vorschau von Plotfiles vor Ausdruck oder Versand. Zusätzlich kann VcView qualitativ hochwertige PDF-Dateien aus den Plotfiles erzeugen, zusätzlich gibt es noch die Umwandlung in andere Formate.
Ich habe mehrere Tage
verschiedene Software HP-GL Viewer in diesem Bereich gesucht und getestet. Für
meine Bedürfnisse war VcView das beste Produkt. VcView arbeitet optimal mit
Allplan und mit Plandesign zusammen.
Der HP-GL-Viewer VcView arbeitet auch mit allen anderen Windows-Programmen
zusammen, indem Sie in eine HP 750C Plotdatei drucken. Beispiel aus Excel siehe
unten.
Features:
- Plotdateien vor dem
Versenden anschauen und prüfen, drucken, umwandeln
- Chefarbeitsplatz, Redlining (Kommentare)
- Konvertierung von Plotfiles in PDF, DXF und weitere Formate
- Pläne grösser als DIN A0! auch als PDF
- Darstellung des RTL-Rasterformats! (Ausdrucke aus Plandesign)
VcView ist meines Wissens das
einzige Programm,
welches das RTL-Format vernünftig darstellen kann.
VcView verarbeitet hybride Daten = Vektorgrafik + Pixelgrafik
|
|
Kurzanleitung VcView Bedienung und HP/GL-Drucker an :FILE ganz unten auf dieser Seite
7
gute Gründe zum Kauf von VcView und VcView Convert:
- Plots vor dem Ausdruck kontrollieren und Fehldrucke einsparen
- Drehen, Vergrössern, Verkleinern von Fremdzeichnungen, Ausschnitte drucken
- Umwandlung in CAD-Formate oder Pixelformate
- Strichstärken ändern, Strichfarben ändern
- Längen messen, Redlining Funktionen
- Übergabe von Ausschnitten oder ganzen Bildern in Office per Zwischenablage
- Einlesen nicht nur von HPGL-Linien Format sondern auch HPGL-RTL-Rasterformat
Grafik im Plandesign, mit
transparenten Skizzenelementen
ausgedruckt mit der Option "HP-Rastertreiber" in Datei

Grafik: im VcView

Grafik: als PDF

Grafik: Allplan Plan mit
hinterlegtem Scanbild (Handskizze)
mit "hpgl-farbig" Plotdatei erzeugt
VcView verarbeitet hybride Daten = Vektorgrafik + Pixelgrafik

Grafik: im VcView

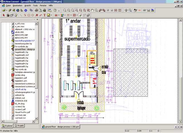
hier eine Standard-CAD-Zeichnung aus Allplan:

Messestand im Vcview HP/GL Viewer

Messestand im Vcview als PDF gespeichert und im Acrobat Reader geöffnet:
Hier ein Beispiel aus Excel:

Aus Excel geplottet mit Treiber HP 750C auf FILE / im Vcview:

Im Vciew als DXF gespeichert, das DXF in Allplan eingelesen:

Bedienelemente von Vcview:
![]()
Icons1: die üblichen Befehle wie Datei
öffnen, Speichern unter, Druckvorschau
Icons2 - rechts davon: Zoom Fenster, Zoom alles, Drehen der Plotdatei
Icons3: Redlining, Linien Boxen Texte Pixelbild auf die Plotdatei einfügen
Icons4 - rechts davon: Redlining Linienbreiten, Stiftliste, Redlining an/aus
Icons5 - ganz rechts: Übersichtsfenster, Lupe, Messen Distanz + Fläche

Druckoptionen: ermöglichen Skalierung und schwarz/weiss Druck

Alle Preise gelten pro Arbeitsplatz in Euro zuzüglich gesetzlicher Mehrwertsteuer. Änderungen vorbehalten. Es gelten die allgemeinen Geschäftsbedingungen und Lizenzvereinbarungen Stephen Schneider Software Vertrieb..
die ZIP Datei herunterladen und in ein Verzeichnis entpacken, mit setup.exe installieren
in
Allplan ein Plotfile erstellen: in der Planzusammenstellung einen Plan
exportieren mit:
--> Erzeugen --> Planzusammenstellung --> HPGL / Pixeldatei erstellen,
dann
HPGL farbig oder schwarz/weiss wählen und Plan plotten - in eine Datei.
VcView starten (Demo-Mode), mit dem VcView-Browser das Verzeichnis suchen, in dem die Plotdatei abgelegt wurde, Doppelklick auf die Datei - Datei wird geladen.
Zoom Fenster, Zoom Alles - sind oben als Icon.
Konvertieren in PDF und andere: --> Datei --> Sichern unter --> Dateityp PDF, Name vergeben und SAVE. Fertig.
Zusammenarbeit VcView mit anderen Windows Programmen
-->
Start --> Einstellungen --> Drucker --> neuer Drucker
"HP Designjet 750 C" wählen --> Anschluss auf :FILE einstellen
dann können Sie mit jedem Windows Programm (Word, Excel, PP, Corel) auf
dieses Gerät drucken.
Beim Druckvorgang kommt eine Dialogbox wo Sie Pfad und Dateiname eingeben
müssen,
z.B. "c:\temp\plotdatei1.hp"
Dies benötigen Sie auch für Plandesign!
Jetzt Vcview Convert bestellen:
|
Noch nicht überzeugt?
Ich habe 2 Wochen lang intensiv diverse Produkte getestet. Alle kostenlosen
Programme haben diverse Einschränkungen und die richtig guten Programme sind
meist auch richtig teuer.
Weiter unten empfehle ich noch ein anderes Programm, dieses ist aber auch
teurer.
- Vcview hat ein gutes Preis-Leistungsverhältnis.
- Vcview ist schnell und zuverlässig, ohne Abstürze.
- Vcview ist leicht zu bedienen.
Freundliche Grüsse
Stephen Schneider
Schulung für Nemetschek Allplan CAD-Software
http://www.schneider-train-it.de
Dienstleistung Visualisierung für Nemetschek Kunden http://www.ingenieurbuero-stephen-schneider.de
Texturen CD mit 15.000
Texturen
http://www.schneider-train-it.de/texturen.htm
Profi-CAD-Viewer mit über 100 Dateiformaten, inklusive DXF und DWG, HP/GL
HP-GL-Viewer RxView:
Basisversion kostet 295 € zzgl. MwSt. zzgl. Versand
Bestellung per email
oder Fax 0941 3074688
WERBUNG:
Texturen-DVD
Ich verkaufe 1 DVD mit hochauflösenden Texturen siehe http://www.rnmedia.de/pages/index.php
Mit Texturen V1 V2 V3 V4 V5 V6 animated textures 3D Augen anstatt 7x29 € = 203
€
nur für 89 € zzgl. ges. MwSt. mailto:sschneider@schneider-train-it.de
Bürotool HP/GL-Viewer - Plotfiles
anschauen und konvertieren
Produktinfo und Bestellung HP-GL-Viewer VcView
HP-GL zu PDF DXF für Allplan, Allplot,
Plandesign
HP-GL Viewer VcView HPGL Plotfiles ansehen und umwandeln in PDF
Maxon
Cinema 4D XL Renderer und Animationsprogramm
Cinema 4D günstig kaufen: cinema
4d@amazon
Preisliste
maxon Cinema4D.pdf
Bestellformulare als Excel-Dateien zum Download:
Cinema R8.5 Standard Cinema
4D R8.5 XL Paket Cinema
4D R8.5 Studio Paket
Cinema
4D R8.5 Optionen Cinema
4D R8.5 Upgrades
Mit
Urteil vom 12. Mai 1998 hat das Landgericht Hamburg entschieden, dass man durch
die Ausbringung eines Links die Inhalte der gelinkten Seite ggf. mit zu
verantworten hat.
Dies kann - so das LG - nur dadurch verhindert werden, dass man sich
ausdrücklich von diesen Inhalten distanziert. Wir haben auf unserer Seite Links
zu anderen Seiten im Internet gelegt. Für all diese Links gilt: Wir möchten
ausdrücklich betonen, dass wir keinerlei Einfluss auf die Gestaltung und die
Inhalte der gelinkten Seiten haben. Deshalb distanzieren wir uns hiermit
ausdrücklich von allen Inhalten aller gelinkten Seiten auf dem Board. Und wir
machen uns deren Inhalte nicht zu Eigen. Diese Erklärung gilt für alle auf
unserer Seite ausgebrachten Links und für alle Inhalte der Seiten, zu denen
andere Banner führen.
Stephen
Schneider © 2002 2003 2004